受太阳能热水器水箱结构和形状的限制,水位试验不得改变或破坏水箱及保温部件的尺寸。水位检测元件只能从预留的约20mm的Ф圆孔的上部或底部伸入箱内。目前大部分太阳能热水器传感器都是使用电极来检测水位(简称电极式),原理是利用水的导电性。电极片按一定尺寸要求分布在绝缘棒上,形成测量棒,从水箱顶部插入。
其中A、B、C、D,包括公共端,为电极板。A、B、C、D电极浸入水中时,与公共端产生A电流。实际检测是根据电极片上是否有电流,来判断是否浸入水中。电极控制和检测电路比较简单,成本较低,因此得到了广泛的应用,是目前的主流技术。然而,当电极结垢时(钠、镁离子的附着),导致测量误差的问题并没有从根本上解决。

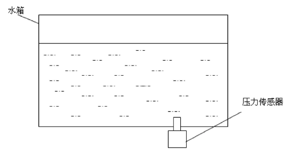
由于电极结垢后,或结垢厚度达到一定程度,无法正常测量水位。在水质较差的地方情况更为严重。为了保证测量的准确性,必须定期更换测量杆。少数太阳能热水器使用水压传感器来测量水位。安装在水箱底部的压力传感器通过测量水压来确定水位(水量),简称压力式。

压力式在一定程度上避免了水垢测量问题,但传感器无法承受60C以上的温度(实际水温往往超过60C)。虽然可以采取一些绝缘措施,但无法防止温度过高对传感器造成损坏。此外,水垢也会影响测量孔堵塞后的测量结果。也有使用干簧管水位检测的,简称干簧管式。原理是在一根测杆内按照一定尺寸(如电极式)分布埋置干簧管,每个干簧管段设置一个带有永磁体的环形浮子,干簧管在每个段的顶部限位和浮子在分段内上下移动,只有当水的浮力升高时,浮子才将块永磁体吸到干簧管的顶部。

测杆从水箱顶部插入。可以看出,当所有浮子都位于断面顶部时,所有干簧管都在动作,所以水位为最高。相反,当所有的浮动都位于该部分的底部时,所有干簧管都不工作,则水位最低。由于机械运动(浮子的上下运动),干簧式的可靠性较低。

